(New) Sylvania YMCA

Opening Fall 2026

A new space for health, connection, and community is coming to Sylvania.
Follow our progress as we build a YMCA designed for families, wellness, and youth development.

What You’ll Find at the New Sylvania YMCA
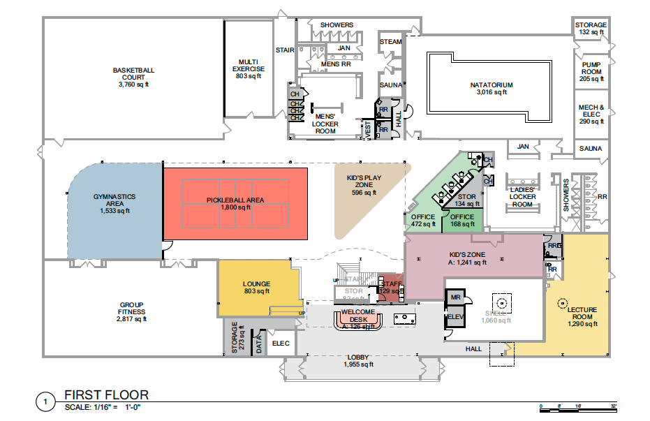
The Sylvania YMCA will feature modern spaces designed to support healthy living, youth development, and community connection.

Branch Amenities

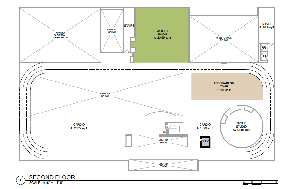
Wellness & Fitness

Wellness Center featuring pin-select machines with stack weights

Free Weight Room

Functional Training Area

Group Exercise Studios

Dedicated Cycle Room

Evidence-Based Wellness Studio

Aquatics & Programs

Swim Lessons

Water Exercise Classes

Youth & Family

KidZone & Teen Area

Dance Studio & STEM Space

Gymnastics

Sports & Recreation

Gymnasium for youth and family open play

Pick-up basketball

Two pickleball courts

pickleball-court

Project Update

Building the Sylvania YMCA

We’re excited to share the progress of the new Sylvania YMCA as construction moves forward.

Check back regularly for photo updates and milestone announcements.

Site work and foundational construction continue as the building begins to take shape.

Sylvania YMCA

2859 N Holland Sylvania Rd
Toledo, OH 43615